Einfamilienhaus in Unterschleißheim

Details zum Baugebiet

Die wunderschöne Einfamilienhaus zeichnet sich durch eine
gehobene Innenausstattung aus und wartet auf Baubeginn.

Das Grundstück befindet sich im beliebten Stadtteil Lohhof Süd,.
Die ruhige Sackgassenlage sorgt für ein hohes Maß an
Privatsphäre und Sicherheit – ideal für Familien mit Kindern oder
alle, die ein entspanntes Wohnumfeld schätzen.

Ihr Ansprechpartner

Vertriebsleiterin
Region Bayern

Jenniffer Vogel

Lage des Baugebietes

Schuckhardt Massiv-Haus

Ihre Möglichkeiten

Einfamilienhaus:

Einfamilienhaus mit Walmdach, Satteldach, Flachdach

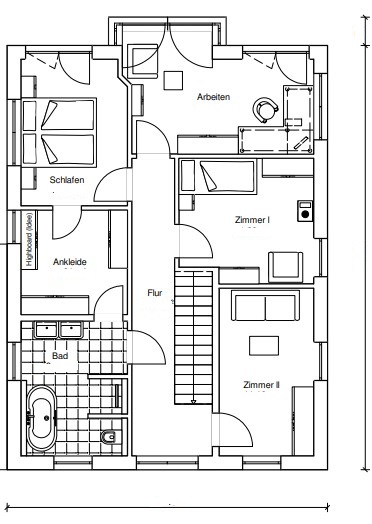
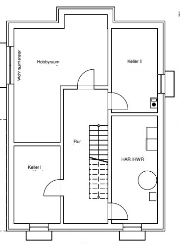
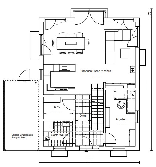
Beispiele zur Bebauung

© 2026 Schuckhardt Massiv-Haus  | Alle Rechte vorbehalten.
cross